棒條振動放礦機
概述
棒條振動放礦機采用消化引進美國枝術制造的振動器、框架式環槽鉚釘聯接結構.又采用錳鋼制造的護板和棒條,結構堅固、強度高、耐沖擊、耐磨損。
特點
棒條振動放礦機在接近排料端的給料面布有分級作用縫隙可調的棒條,在進行給料同時能將物料中泥土及細碎粒級的物料分離出去,使其后面的破碎機更有效發揮功能;棒條振動放礦機采用錳鋼制造的護板和棒條,結構堅固、強度高、耐沖擊、耐磨損。
參數
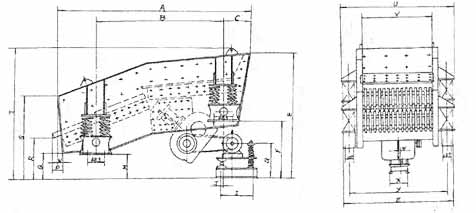
型 號 | 工作面積m2 | 盲板傾角° | 棒條傾角° | 雙振幅mm | 振動方向角° | 最大給料粒度mm | 生產率t/h | 振動次數次/分 | 電動機 | ||
盲板 | 棒條 | 型號 | 功率kW | ||||||||
GZT0720 | 0.7 | 0.7 | 0 | 15 | 12 | 45 | 400 | 150-175 | 750 | Y160M-6 | 7.5 |
GZT0930 | 1.2 | 1.35 | 5 | 20 | 11 | 45 | 400 | 200-230 | 79-790 | YCT200-4B | 7.5 |
GZT1230 | 1.8 | 1.8 | 5 | 20 | 9 | 45 | 700 | 260-300 | 800 | Y160M-6 | 7.5 |
GZT1535 | 3 | 2.3 | 5 | 20 | 9 | 45 | 700 | 300-400 | 800 | Y160M-4 | 11 |
GZT1560 | 6 | 3 | 5 | 20 | 8 | 45 | 1000 | 400-600 | 800 | Y180M-4 | 22 |
型 號 | 外型尺寸 | 總重kg | 最大分離件 | |
長×寬×高mm | 外型尺寸 長×寬×高mm | 重量kg | ||
GZT0720 | 3140×1420×1679 | 3936 | 2800×1420×1090 | 2331 |
GZT0930 | 3009×1645×2011 | 4359 | 2774×1645×1528 | 3390 |
GZT1230 | 3384×1949×2055 | 4808 | 3457×1949×1403 | 3953 |
GZT1535 | 4007×2226×1980 | 5994 | 4214×2226×1675 | 5490 |
GZT1560 | 6318×2295×3015 | 11153 | 6492×2295×2104 | 8583 |
型號 | A | E | G | N | Q | R | S | T | U | V | W | X | Y | Z |
GZT0720 | 2600 | 1679 | 452 | 107 | 469 | 736 | 1201 | 1769 | 1420 | 700 | 89.5 | 280 | 1137 | 1413 |
GZT0930 | 2680 | 2011 | 520 | 0 | 453 | 800 | 1423 | 2011 | 1645 | 925 | 105 | 390 | 1376 | 1652 |
GZT1230 | 3360 | 2057 | 480 | 84 | 684 | 929 | 1646 | 2162 | 1949 | 1225 | 118 | 280 | 1675 | 1908 |
GZT1535 | 4007 | 1980 | 480 | 82 | 305 | 510 | 1245 | 1980 | 2226 | 1530 | 140 | 280 | 1961 | 2237 |
GZT1560 | 6378 | 2814 | 500 | 89 | 710 | 920 | 1741 | 3024 | 2295 | 1590 | 352 | 350 | 2042 | 2318 |
用途
棒條振動放礦機共有五個規格,適用于破碎機前大塊物料的均勻給料。特別適合于黑色或有色金屬礦石、建筑石料粗碎前的給料用。

相關產品
-
GZT棒條式振動給料機
GZT系列棒條式振動給料機采用消化引進美國枝術制造的振動器、框架式環槽鉚釘聯接結構.又采用錳鋼制造的護板和棒條,結構堅固、強度高、耐沖擊、耐磨損。
立即了解?GZT棒條式振動給料機
-
振動放礦機
振動放礦機在超共振狀態下工作,振幅穩定,可以頻繁起動(起動次數《200次/時),允許振動臺板上的負載有較大的波動,對各種礦巖特別是粘性礦巖物料適應性較強,并可在多塵或含水較多的環境下工作。
立即了解?振動放礦機
動態
-
24
2014-10
談談振動放礦機有哪些具體特性
振動放礦機體積小,重量輕,結構簡單緊湊,投資少. 棒條振動放礦機在接近排料端的給料面布有分級作用縫隙可調的棒條,在進行給料同時能將物料中泥土及細碎粒級的物料分離出去,使其后面的破碎機更有效發揮功能.
-
12
2012-03
皮帶輸送機由于振動大減少了懸拱、卡礦現象
振動放礦機是一種以振動電機為激振源的顛振型慣性振動出礦設備,螺旋輸送機廣泛適用于冶金、化工、建材、煤炭等礦業。皮帶輸送機設備制造簡單,安裝工程量小,成本較低。
-
25
2011-03
ZZF、DZF系列振動放礦機
它是廠礦企業作巖、物料放出、給料或裝車之用的理想設備,各種礦車、汽車、火車、皮帶、索道礦斗、礦井提升裝載以及部分鄂式破碎機等均可選用本系列振動放礦機給礦。
-
23
2013-01
振動放礦機對環境條件的要求
振動放礦機可頻繁起動。不大于200次/小時。棒條振動放礦機為顛振型慣性振動出放、出礦機,以ZDJ振動電機為振源,依據不同的生產條件要求,以輕型化和組合化的方式合理地選擇有關參數,編制出主要型號10個、派生型號25個,共35個型號。
-
17
2012-08
振動放礦機是以振動電機為動力源
振動放礦機是以振動電機為動力源,利用安裝在振動電機主軸兩端的偏心塊在旋轉運動中所產生的離心力來得到激振力,棒條振動放礦機廣泛適用于冶金、化工、建材、煤炭等礦業。
熱銷產品
-
DZSF直線振動篩
DZSF系列直線振動篩是由篩箱、篩框、振動電機、減振系統及座架等組成。直線振動篩是用振動電機作為振動源,固定在篩箱上兩臺相同的振動電機做相反方向自同步旋轉,振動電機所帶的偏心塊在旋轉時各個瞬間位置所產生的離心力之分力沿拋擲方向作往復運動
立即了解?DZSF直線振動篩
-
CZ系列倉壁振動器
-
ZG系列慣性振動器
-
GZ系列電磁振動給料機
GZ系列電磁振動給料機在生產流程中,用于把塊狀、顆粒狀、粉狀物料從貯料倉或漏斗中定量、均勻、連續地給到受料裝置中去。
立即了解?GZ系列電磁振動給料機